業務用厨房機器メーカー 東証上場
株式会社マルゼン
企業情報
企業情報
1ページでわかるマルゼン
会社組織
納入実績例
会社概要
会社の経歴
サスティナビリティ
マルゼンについて
製品の開発
事業所一覧
製品情報
講習会・展示即売会
サポート
投資家の皆様へ
事業所一覧
海外
English
Thailand
Taiwan
お問い合わせ
採用情報
業務用厨房機器メーカー 東証上場
株式会社マルゼン
お問い合わせ
企業情報
企業情報
1ページでわかるマルゼン
会社概要
マルゼンについて
会社組織
会社の経歴
製品の開発
納入実績例
事業所一覧
サステナビリティ
製品情報
講習会・展示即売会
サポート
投資家の皆様へ
事業所一覧
海外
お問い合わせ
採用情報
English
Thailand
Taiwan
トップ
厨房設計・施工のご相談(無料)
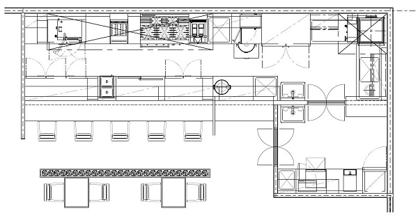
【厨房設備施工例】 洋食: 席数 40席
【厨房設備施工例】 洋食: 席数 40席
厨房の設計・施工一覧に戻る
Contact us
厨房のことでお悩みがあれば、
お気軽にお問い合わせください。
厨房機器のトータルでサポートする
マルゼンが解決します。
お問い合わせ
当サイトを最適な状態で閲覧していただくにはブラウザの
JavaScriptを有効
にしてご利用下さい。
JavaScriptを無効のままご覧いただいた場合には一部機能がご利用頂けない場合や正しい情報を取得できない場合がございます。